Alliste: casa indipendente - 4 locali - 160 mq

COD FEL-001
Responsabile: Massimo Munitello
€ 95.000,00IN VENDITAFELLINE

Descrizione

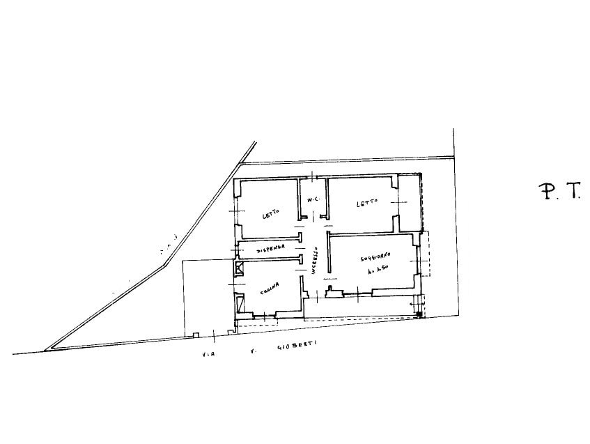
FELLINE: Nel suggestivo borgo della frazione di Alliste, a pochi metri dal pittoresco centro storico oramai divenuto tappa fissa di tutti coloro che decidono di trascorrere le proprie vacanze nel Salento, a soli 6 Km dal mare ed a pochi minuti dalle bellissime spiagge di Torre San Giovanni, a soli 200 mt dai servizi, proponiamo una soluzione indipendente con esposizione angolare, di ampia metratura, così composta: appena varcato il cancelletto che delimita la proprietà ci troviamo in una bella veranda in parte coperta che circonda l' abitazione e su tre lati, da qui possiamo entrare all'interno della struttura dove abbiamo un accogliente ingresso che ci permette di raggiungere l'ampio e luminoso salotto, le due comode camere da letto matrimoniali, un bagno, un vano ripostiglio e la cucina abitabile, da qui possiamo giungere in uno scoperto laterale che è stato chiuso con una struttura amovibile ed è stato adibito a box auto, inoltre abbiamo una cantina ed un ulteriore terrazzino laterale. L'immobile si presenta in discrete condizioni, è climatizzato e viene venduto arredato. Grazie alla sua posizione , all'esposizione e alla sua conformazione , l'abitazione potrebbe rappresentare la scelta ideale per le famiglie che cercano una casa comoda, dotata di ampi spazi coperti e scoperti, con la possibilità di poterla personalizzare e adattarla ai propri gusti e necessità, ma anche per coloro che intendono investire nell'entroterra salentino. VISITABILE ANCHE DI DOMENICA PREVIO APPUNTAMENTO E DISPONIBILITA'.  Gli immobili sono postati anche sulle nostre pagine Facebook e Instagram, cerca GianoGroup e clicca su "mi piace" per rimanere sempre aggiornato su tutte le nostre new entry. 

Caratteristiche

  • Mq Commerciali: 160.00
  • Mq Scoperti: 120mq
  • Locali: 4
  • Anno di costruzione: 1967
  • nessuno
  • Classe energetica: G
  • Cantina
  • Terrazzo
  • Giardino
  • Bagni: 1
  • Cucina: 1
  • Soggiorno: 1
  • Ripostigli: 1

Planimetria

Ubicazione

via Birago 37

Distanza dal mare: 6 Km

Distanza dai servizi: 250mt

Invia una richiesta per questo immobile

La compilazione del modulo autorizza formalmente il trattamento dei dati personali e sensibili nel rispetto del decreto legislativo n.196/2003 del governo italiano e del GDPR europeo n. 2016/679.