Taurisano: casa di corte - 6 locali - 150 mq

COD TAU-014
Responsabile: Massimo Munitello
€ 125.000,00IN VENDITATAURISANO

Descrizione

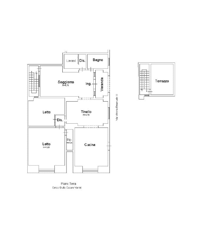
TAURISANO: Nel centro della bella città salentina di Giulio Cesare Vanini, città che è posizionata a pochi Km dalle bellissime marine di Ugento, a pochi Km da Gallipoli e da Santa Maria di Leuca, a pochissimi metri dai servizi essenziali, proponiamo una interessante  soluzione con tipiche volte a stella, finemente ristrutturata, ubicata al piano terra e con esposizione angolare,  così composta: appena entrati nella struttura ci troviamo subito in un accogliente salotto dotato di un camino, da qui possiamo giungere nella bella sala pranzo e poi nel cucinotto dotato di un'isola, nella zona notte abbiamo una bella e luminosa camera da letto con una cabina armadio e con bagno in camere, una cameretta e un ulteriore bagno, inoltre l'immobile è dotato di un vano lavanderia, di un box auto nel quale è stato fatto un soppalco in muratura che ha permesso di ottenere uno studio accessibile da una comoda scala che parte dal box stesso, infine vi è un pozzo luce dal quale parte una scala che porta su un piccolo ripostiglio. L' abitazione si presenta in ottime condizioni anche perchè è stata oggetto di una ristrutturazione totale avvenuta nel 2018 è climatizzata ed è dotata dell'impianto di riscaldamento già allacciato alla rete pubblica del metano e viene venduta già arredata. Grazie alla sua posizione e alla sua metratura, l'immobile rappresenta la soluzione ideale per le famiglie che cercano una soluzione pronta per essere abitata e che intendono vivere in una zona ben servita, ma anche per coloro che intendono investire nell'entroterra Salentino mettendola a reddito.  VISITABILE ANCHE DI DOMENICA PREVIO APPUNTAMENTO E DISPONIBILITA'. Gli immobili sono postati anche sulle nostre pagine Facebook e Instagram, cerca Giano Group e clicca su "mi piace" per rimanere sempre aggiornato su tutte le nostre new entry.    

Caratteristiche

  • Mq Commerciali: 150.00
  • Mq Scoperti: 10,00mq
  • Locali: 6
  • Anno di costruzione: 1960
  • Anno di ristrutturazione: 2018
  • box auto
  • Classe energetica: G
  • Bagni: 2
  • Cucina: 1
  • Soggiorno: 2
  • Ripostigli: 1

Planimetria

Ubicazione

via Vittorio Emanuele III 23

Distanza dal mare: 12KM

Distanza dai servizi: 300mt

Invia una richiesta per questo immobile

La compilazione del modulo autorizza formalmente il trattamento dei dati personali e sensibili nel rispetto del decreto legislativo n.196/2003 del governo italiano e del GDPR europeo n. 2016/679.