Ugento: Appartamento - 3 locali - 70 mq

COD LM-012
Responsabile: Massimo Munitello
€ 99.000,00IN VENDITALIDO MARINI - UGENTO

Descrizione

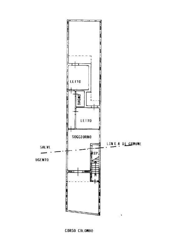
LIDO MARINI: Nella bella marina del litorale Ionico, località alla quale è stato confermato l'importante riconoscimento della Bandiera Blu anche per l'anno 2023,località che si caratterizza per le sue distese di spiaggia bagnate da acque cristalline, a pochi Km da Pescoluse, da Santa Maria di Leuca, da Torre San Giovanni e da Gallipoli,  sul corso principale, vicino al mare ed ai servizi,  proponiamo soluzione al piano terra, di 3 vani,  composta da: veranda antistante che eventualmente potrebbe anche fungere da posto auto, accogliente soggiorno-pranzo, comodo cucinotto, un funzionale bagno, due comode camere da letto, ampio scoperto retrostante che può essere tranquillamente utilizzato per consumare i pasti all'aperto oppure per trascorrervi delle piacevoli serate estive in tutta riservatezza. L'immobile si presenta in discrete condizioni, recentemente sono stati fatti degli interventi sull'impianto elettrico, si vende già completo di arredamento.  Grazie alla sua posizione e alla sua metratura, questa è la soluzione è l'ideale per le famiglie  che cercano una soluzione comoda che sia vicina alla spiaggia ed a tutti i servizi principali, ma anche per chi volesse investire nel Salento. VISITABILE ANCHE DI DOMENICA PREVIO APPUNTAMENTO E DISPONIBILITA'.  Gli immobili sono postati anche sulle nostre pagine Facebook e Instagram, cerca GianoGroup e clicca su "mi piace" per rimanere sempre aggiornato su tutte le nostre new entry. 

Caratteristiche

  • Mq Commerciali: 70.00
  • Mq Scoperti: 55mq
  • Locali: 3
  • Anno di costruzione: 1983
  • nessuno
  • Classe energetica: G
  • Terrazzo
  • Giardino
  • Bagni: 1
  • Cucina: 1
  • Soggiorno: 1
  • Ripostigli: 1

Planimetria

Ubicazione

C.so Colombo 133

Distanza dal mare: 400mt

Distanza dai servizi: 50mt

Invia una richiesta per questo immobile

La compilazione del modulo autorizza formalmente il trattamento dei dati personali e sensibili nel rispetto del decreto legislativo n.196/2003 del governo italiano e del GDPR europeo n. 2016/679.