Ugento: bifamiliare - 6 locali - 180 mq

COD U-014
Responsabile: Simone Rosafio
€ 130.000,00IN VENDITAPIAZZA ITALIA

Descrizione

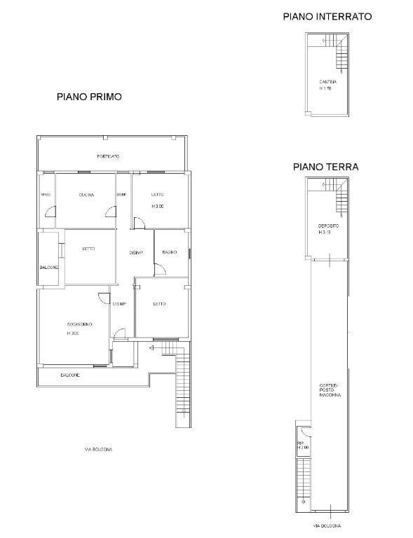
UGENTO: situato in zona Piazza Italia, a pochi metri dai principali servizi, ed a soli pochi chilometri dalla rinomata marina di Torre san Giovanni e dalle sue splendide spiagge, proponiamo in vendita un luminoso appartamento al piano primo e così composto: appena varcato il cancello che delimita la proprietà si accede ad un ampio spazio scoperto al piano  terra che funge anche da posto auto, con la presenza di un vano ad uso deposito. Sull'appartamento accediamo tramite una comoda scala in muratura e quindi su un  balcone antistante dal quale si accede all'interno della soluzione dove ad accoglierci abbiamo un comodo disimpegno che divide un ampio e luminoso soggiorno-pranzo, tre camere da letto matrimoniali, un bagno, una cucina con camino, ripostiglio, un secondo balcone laterale ed un terrazzino retrostante con la presenza di un porticato. Il lastricato solare è di esclusiva pertinenza, prezioso e versatile ideale per creare un terrazzo panoramico per cene estive o una zona realx. Si presenta in buone condizioni generali e viene  venduto semiarredato, inoltre vi è presente anche la predisposizione in ogni ambiante per il riscaldamento.  Quest'immobile rappresenta la soluzione ideale per famiglie numerose, in modo da avere la comodità del centro urbano senza rinunciare alla vicinanza al mare, o per essere adibito a struttura ricettiva per chi volesse investire sul territorio Salentino. VISITABILE ANCHE DI DOMENICA PREVIO APPUNTAMENTO E DISPONIBILITA'.  Gli immobili sono postati anche sulle nostre pagine Facebook e Instagram, cerca GianoGroup e clicca su "mi piace" per rimanere sempre aggiornato su tutte le nostre new entry. 

Caratteristiche

  • Mq Commerciali: 180.00
  • Mq Scoperti: 60.00
  • Locali: 6
  • Anno di costruzione: 1980
  • posto auto scoperto
  • Classe energetica: G
  • Cantina
  • Terrazzo
  • Bagni: 1
  • Cucina: 1
  • Soggiorno: 1
  • Ripostigli: 2

Planimetria

Ubicazione

Via Bologna 19

Distanza dal mare: 5km

Distanza dai servizi: 50 mt

Video

Invia una richiesta per questo immobile

La compilazione del modulo autorizza formalmente il trattamento dei dati personali e sensibili nel rispetto del decreto legislativo n.196/2003 del governo italiano e del GDPR europeo n. 2016/679.