Ugento: casa indipendente - 6 locali - 150 mq

COD LM-010
Responsabile: Massimo Munitello
€ 165.000,00IN VENDITALIDO MARINI - UGENTO

Descrizione

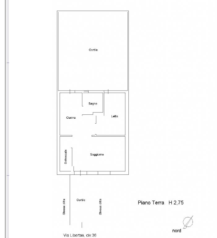
LIDO MARINI: in una parallela del corso principale, a pochi passi dal mare, proponiamo soluzione indipendente disposta su tre livelli e composta da due appartamenti ed un vano garage; al piano terra abbiamo il primo appartamento, composta da: ingresso, sala da pranzo, bagno, camera matrimoniale, cameretta, piccolo scoperto antistante e ampio scoperto retrostante dal quale si accede dalla sala da pranzo. Il secondo appartamento al piano primo, ha accesso indipendente ed è composto anch'esso di sala da pranzo, bagno, camera matrimoniale e cameretta, entrambe con affaccio su un balcone; infine al piano interrato vi è un ampio vano garage di circa 90mq con accesso da una rampa da via Libertas. L'immobile è climatizzato ed è tenuto in buono stato, la costruzione risale al 1995, ma nel 2021 sono stati fatti degli interventi che hanno riguardato gli impianti,  le rifiniture sono molto estrose, pertanto, è da apprezzare la vena artistica del vecchio proprietario nel realizzare un edificio unico nel suo genere. Potrebbe essere la soluzione ideale per chi fosse interessato a fare un ottimo investimento, acquistando due appartamenti, di cui uno potrebbe sfruttarlo per le proprie vacanze e il secondo da mettere a reddito come casa vacanze. VISITABILE ANCHE DI DOMENICA PREVIO APPUNTAMENTO E DISPONIBILITA.  Gli immobili sono postati anche sulle nostre pagine Facebook e Instagram, cerca GianoGroup e clicca su "mi piace" per rimanere sempre aggiornato su tutte le nostre new entry. 

Caratteristiche

  • Mq Commerciali: 150.00
  • Mq Scoperti: 85
  • Locali: 6
  • Anno di costruzione: 1995
  • Anno di ristrutturazione: 2021
  • box auto
  • Classe energetica: G
  • Cantina
  • Terrazzo
  • Bagni: 2

Planimetria

Ubicazione

via Libertas 34

Distanza dal mare: 150 Mt

Distanza dai servizi: 150 Mt

Invia una richiesta per questo immobile

La compilazione del modulo autorizza formalmente il trattamento dei dati personali e sensibili nel rispetto del decreto legislativo n.196/2003 del governo italiano e del GDPR europeo n. 2016/679.