Ugento: villa a schiera - 7 locali - 140 mq

COD TSG-030
Responsabile: Simone Rosafio
€ 180.000,00IN VENDITATORRE SAN GIOVANNI

Descrizione

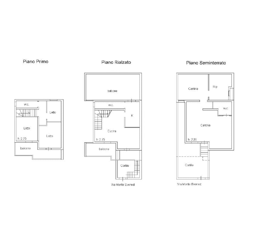
TORRE SAN GIOVANNI: Nella marina più importante di Ugento, divenuta oramai un punto di riferimento per tutti coloro che intendono trascorrere le proprie vacanze estive nel Salento, località divenuta famosa grazie alle sue distese di spiaggia paragonabile a quella dei Caraibi, ai servizi che offre e alla sua collocazione geografica che la vede a pochi km da Gallipoli, Pescoluse e Santa Maria di Leuca, in zona palazzetto, a pochi metri dal lungomare e dai servizi principali, proponiamo in vendita una villetta indipendente organizzata su più livelli e così composta: al piano rialzato abbiamo un bel terrazzino antistante che porta alla zona giorno e quindi ad un accogliente soggiorno, un cucinotto che permette di accedere ad un bel terrazzino retrostante rifinito da un bellissimo porticato in legno, ed un bagno di servizio. Dal soggiorno-pranzo salendo su per le scale arriviamo al piano primo, dove troviamo la zona notte composta da due ampie e luminose camere matrimoniali dotate di un bel balcone, una cameretta ed un comodo bagno; al piano seminterrato invece, abbiamo un vano deposito adibito ad appartamento, composto da una verandina antistante, un ampio soggiorno con angolo cottura, due accoglienti camere da letto ed un comodo bagno. L'immobile si presenta in ottimo stato, in quanto è stato parzialmente ristrutturato con delle buone rifiniture,  già climatizzato, e con la predisposizione per l'impianto di riscaldamento, e viene venduta già arredata. Grazie alla sua conformazione e alla sua posizione, questa struttura rappresenta la soluzione ideale per le famiglie che cercano un comodo appoggio al mare da poter sfruttare sia nei mesi estivi, ma anche per chi cerca una soluzione in cui viverci stabilmente, e soprattutto per chi intende fare un investimento sicuro nel Salento avendo la possibilità di poter sfruttare anche il piano seminterrato, che comunque vanta un ingresso autonomo. VISITABILE ANCHE DI DOMENICA PREVIO APPUNTAMENTO E DISPONIBILITA'. Gli immobili sono postati anche sulle nostre pagine Facebook e Instagram, cerca Giano Group e clicca su "mi piace" per rimanere sempre aggiornato su tutte le nostre new entry.

Caratteristiche

  • Mq Commerciali: 140.00
  • Mq Scoperti: 80.00
  • Locali: 7
  • Anno di costruzione: 1990
  • posto auto scoperto
  • Classe energetica: G
  • Terrazzo
  • Bagni: 3
  • Cucina: 2
  • Soggiorno: 2
  • Ripostigli: 1

Planimetria

Ubicazione

Via Monte Everest 68-70

Distanza dal mare: 300 mt

Distanza dai servizi: 150 mt

Invia una richiesta per questo immobile

La compilazione del modulo autorizza formalmente il trattamento dei dati personali e sensibili nel rispetto del decreto legislativo n.196/2003 del governo italiano e del GDPR europeo n. 2016/679.